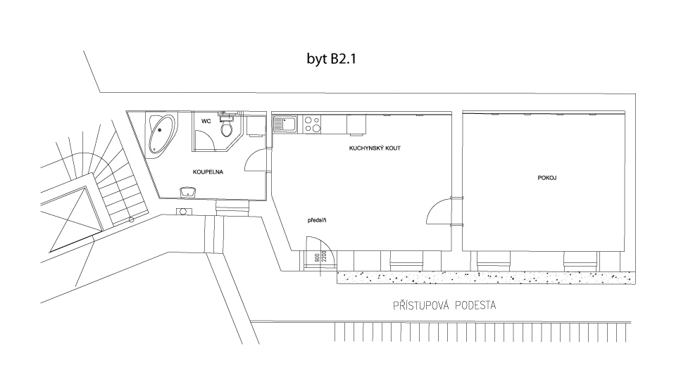
Detail bytu 2+kk - byt B2.1
Zpět na seznam bytů| Stav | OBSAZEN |
| Podlaží | druhé |
| Kategorie bytu | 2+kk |
| Podlahová plocha | 57,31m2 |
| Balkón / terasa | --- |
| Přezahrádka | --- |
| Společný bazén ve dvoře | 18m2 |
Poznámka:
K bytu je k dispozici zahrada a bazén ve dvorní části.
K bytu je k dispozici zahrada a bazén ve dvorní části.
